物件情報
【戸建住宅】南区丹那町 全2棟
物件詳細
| 所在地 | 広島県広島市南区丹那町1丁目24- |
|---|---|
| 売買代金 | 4,480万円 |
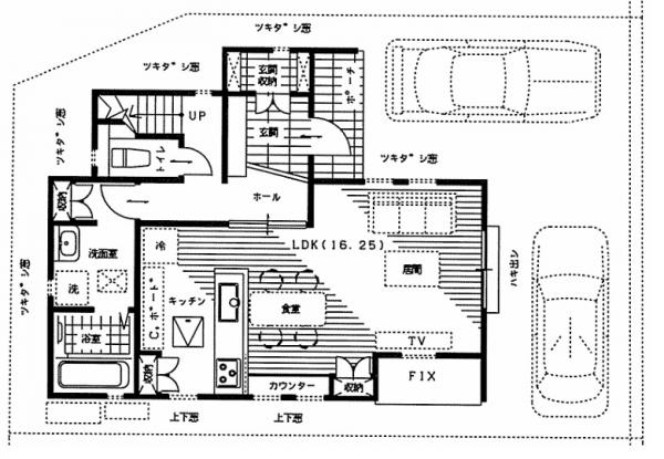
| 間取り詳細 | (LDK16.3・洋8.0・洋5.2・洋5.2・洋5.2) |
| 土地面積 | 111.93m2(33.86坪) |
| 建物面積 | 103.92m2(31.44坪) |
| 築年数 | 令和8年04月 |
| 構造/規模 | 木造 / 2階建 |
| 駐車場 | 2台使用可能 |
| 間取り | 4LDK |
|---|---|
| 交 通 | 広島電鉄宇品線「県病院前駅」徒歩19分 |
| 建ぺい率/容積率 | 60% / 160% |
| 権利関係 | 所有権 |
| 現 状 | 完成済 |
| 引 渡 | 即 |
| 用途地域 | 第一種住居地域 |
| 取引形式 | 媒介 |
| 特記事項 | 【PayPayポイント】キャンペーン対象物件! 現地見学できます! 即日、平日・夜間のご案内も可能です。 ご見学のご希望は、お気軽にお問合せください。 ■ 全居室が南向きか2面採光なので、明るく・開放感あふれる生活空間です。 ■ 制振ダンパー設置なので、耐震に考慮した住宅です。 ■ リビング・ダイニングの壁側にカウンターが設置しているので、お子様の勉強、PC作業等多目的に使用できます。 ■ 玄関収納があるので、ベビーカー・ゴルフバッグ等の置き場にも困りません。 ■ 周囲は閑静な住宅街で、ゆったりとした生活がおくれそうです。 ■ カップボード・パントリー設置でキッチン廻りがすっきりして、家事も楽ちんです。 ■ オール電化住宅でエコキュート採用! 電気代も節約できます。 ■ オール「LOW-E ペアガラス」を採用。 通常の複層ガラスより断熱効果を高めます! ■ 車種により、駐車場2台使用可能です。 【PayPayポイント】キャンペーンにより、 当社の仲介でご成約になったお客様には、最大20万円相当のPayPayポイントをプレゼント! 詳しくは担当にお問合せか、 https://realestate.yahoo.co.jp/used/agreement/ をご参照ください。 【学区】 ■ 楠那小学校 ■ 楠那中学校 【ご要望により検討地域の3つの情報をご提供します!】 ■ ハザードマップ ■ 生活施設情報 ■ 周辺の統計情報 |
|---|
物件地図
新築・戸建て・マンション・土地に関する
ご質問、ご相談、現地見学など
お気軽にお問い合わせ下さい。





















